Lakás kiadó

Budapest V. ker., Petőfi tér - Belváros
€ 975 / hónap
374.283 Ft
2 szoba 2 szoba
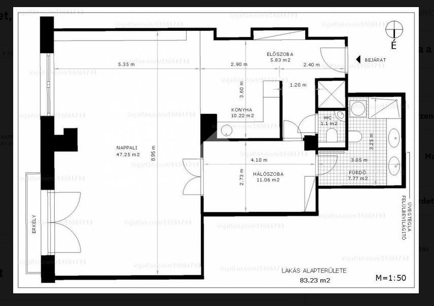
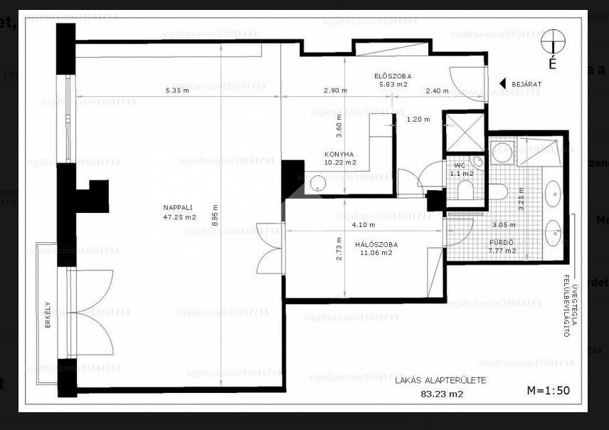
83 nm 83 nm
1 fürdő 1 fürdő

Lakás kiadó

Budapest V. ker., Petőfi tér - Belváros

Leírás

Kiadó elegáns, Bauhaus stílusú lakás Budapest szívében – Petőfi tér 3–5.

Budapest V. kerületének egyik legpatinásabb részén, a Petőfi téren kínálunk kiadásra egy kivételes adottságokkal rendelkező, 83 négyzetméteres, Bauhaus stílusban épült, erkéllyel rendelkező lakást. Az ingatlan egy rendezett, portaszolgálatos, elegáns társasház ötödik emeletén található, természetesen lifttel megközelíthető.
A lakás teljesen bútorozott és gépesített, így azonnal költözhető, különösen ideális azoknak, akik egy minőségi, igényesen kialakított otthont keresnek a belváros szívében. A két tágas, világos szoba mellett külön konyha, fürdőszoba és előszoba szolgálja a kényelmet. A nyílászárók háromrétegű, hő- és hangszigetelő thermo üveggel ellátott, duplakomfortos kialakítású ablakok, a kellemes hőérzetről pedig légkondicionáló berendezés is gondoskodik.

Bérleti díj és költségek:
- Bérleti díj: 975 EUR / hó + rezsi
- Közösköltség: 60000 Ft, amely tartalmazza
- házközponti fűtést
- háztakarítást
- szemétszállítást
- biztosítást
Áram- és vízfogyasztás külön fizetendő a tényleges mérőórák alapján

A lakás azonnal költözhető, tárgyhavi bérleti díj, két havi kaució és a közjegyzői díj fele megfizetése mellett.

Dohányzás és kisállat nem engedélyezett!!

Tömegközlekedés:
- Villamosjáratok (pl. 2-es villamos) a közelben, amelyek közvetlenül visznek a Dunához és a belváros más részeire.
- Buszjáratok és esetleg trolik is elérhetők.
- A metró vonalak (M1, M2, M3) néhány perces sétányira, attól függően, melyik állomás felé indulunk – kiváló kapcsolatokkal az egész városra.

Parkolási lehetőség az utcán, illetve kb. 250 méterre egy parkolóház.

Gyalogosan és kerékpárral is nagyon jó: a sétatávolságban minden fontos szolgáltatás, üzlet, étterem, szórakozási lehetőség megtalálható.

Összes mutatása

Tulajdonságok

Ref.:
58672
Állapot:
Felújított
Emelet:
5
Lift:
Van
Építés éve:
1900
Tájolás:
Keleti
Összes mutatása

Energetikai tanúsítvány

Ennél az ingatlannál az energetikai tanúsítvány folyamatban van
Építés éve:
1900

Vegye fel velünk a kapcsolatot

* Ez a mező kötelező
Franchisee
Studio Casa Kft.
1068 Budapest, Király utca, 102.
1068 Budapest, Király utca, 102. Kiadó ingatlanok

Munkatársaink


  • Szabó Piroska
    Irodavezető

  • Böröczki Klaudia
    Képviselő

  • Vivien Horváth
    Irodavezető

  • Szabó László
    Irodatulajdonos
Franchisee
Studio Casa Kft.
1068 Budapest, Király utca, 102.
Tecnocasa Group Logo

Minden ügynökségnek saját tulajdonosa van és önállóan működik.

árfolyam 12/12/2025
EUR 383.88 HUF

cégünk

Elérhetőségeink

2025 Gruppo T.F.M. Szolgáltató Zrt. - P. IVA 27421275-2-42 - 1068 Budapest, Király utca 102.. Minden ügynökségnek saját tulajdonosa van és önállóan működik.

Adatvédelmi irányelvek | Cookies tájékoztató